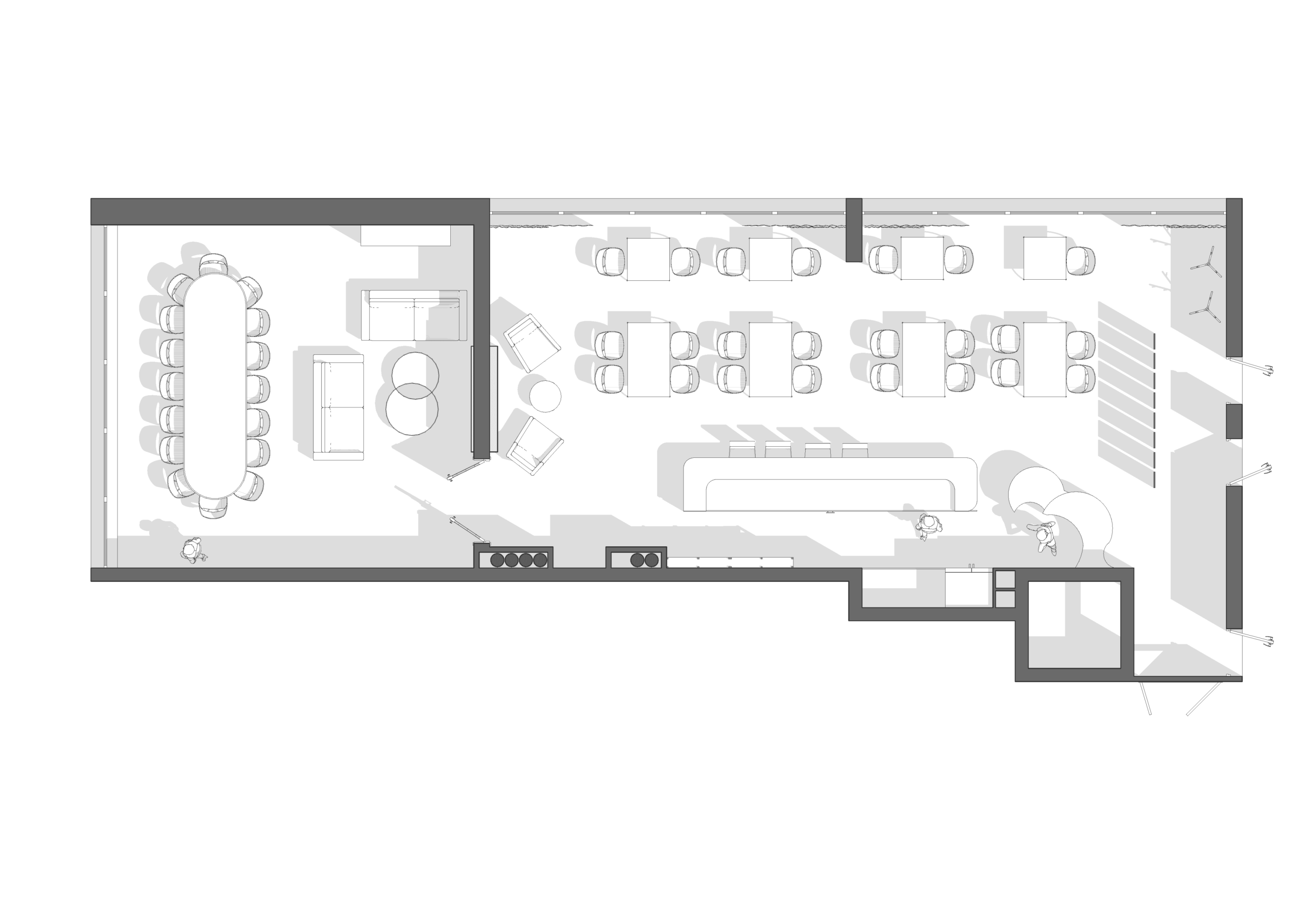
Планировочное решение
Ресторан - 95,21 м2
Описание проекта
SPA complex in the Czech Republic Restaurant
Описание проекта
Restaurant & Event Halls — SPA complex in the Czech Republic
Этот проект является логическим продолжением масштабного СПА-комплекса в Чехии и представляет собой его гастрономическое и социальное сердце. Пространство объединяет в себе основной ресторан с баром и камерный банкетный зал (каминную зону), предназначенные как для ежедневного питания гостей отеля, так и для проведения частных мероприятий и конференций. Интерьер выполнен в современной стилистике, гармонично дополняющей общую концепцию оздоровления и релаксации.
Основные идеи проекта
-
Дуальность атмосферы: Концепция строится на контрасте двух зон, создающих разное настроение. Общий зал наполнен воздухом, светом и легкостью для дневных встреч и завтраков, в то время как банкетный зал предлагает более кулуарную, «вечернюю» обстановку, располагающую к долгим беседам у огня.
-
Эстетика современной роскоши: Дизайн ресторана уходит от стерильности, предлагая гостям тактильный и визуальный комфорт. Использование благородных текстур камня, бархата и латуни подчеркивает статусность места, сохраняя при этом уют.
-
Сценарии для общения: Пространство спроектировано так, чтобы быть универсальным: от уединенного ужина в мягкой зоне до масштабного банкета за общим столом или деловой встречи в конференц-формате.
Особенности реализации дизайна
-
Цветовая палитра и зонирование:
-
Общий зал: Здесь царит теплая, «обволакивающая» гамма с использованием пудровых, терракотовых и кремовых оттенков. Акценты расставлены с помощью золотистой латуни и глубокого зеленого цвета в отделке барной стойки. Декор из сухоцветов и пампасной травы под потолком добавляет пространству воздушности и природной мягкости.
-
Банкетный зал: Эта зона выполнена в более сдержанных, благородных тонах — бежевом, сером и шоколадном. Строгая геометрия кессонного потолка с темными балками создает ритм и подчеркивает архитектурность помещения.
-
-
Материалы и текстуры: В отделке активно используется натуральный камень и мрамор (столешницы, портал камина), который контрастирует с мягкостью велюровой обивки кресел и диванов. Рифленое стекло в перегородках и дверях добавляет игру света и визуальную сложность, не перегружая интерьер.
-
Освещение и уют: В общем зале использованы сферические светильники из тонированного стекла, создающие мягкий рассеянный свет. В банкетном зале центральным элементом стал современный линейный камин, встроенный в масштабный портал из камня. Огонь служит главным источником уюта, а продуманная подсветка потолочных ниш и декоративных панно позволяет регулировать интимность обстановки.
Результат
В результате работы над проектом удалось создать многогранное пространство, которое идеально вписывается в экосистему СПА-комплекса. Ресторанная зона стала не просто местом для приема пищи, а самостоятельной точкой притяжения, где гости могут продолжить свой отдых в атмосфере изысканного комфорта. Баланс между открытостью общего зала и приватностью каминной зоны позволяет комплексу гибко подстраиваться под любые запросы гостей — от утреннего кофе до торжественного гала-ужина.











