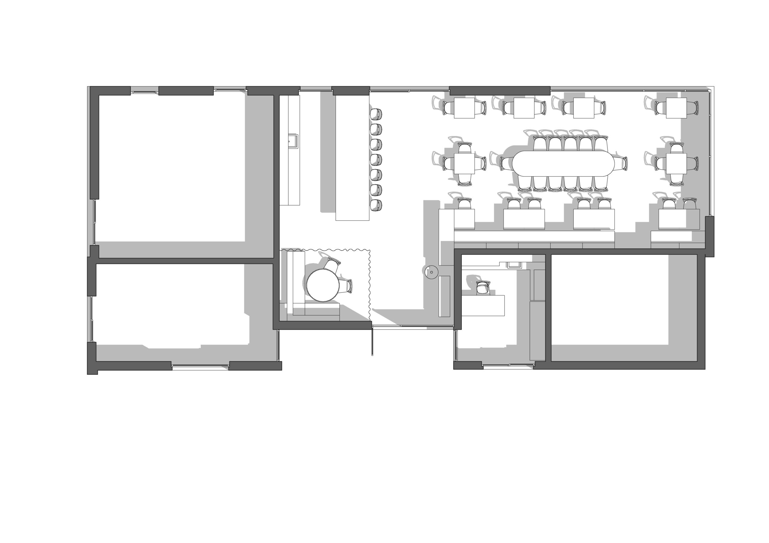
Планировочное решение
Ресторан

Описание проекта
TESLA AM SEE
Ресторан-пиццерия TESLA AM SEE, расположенный на живописном берегу озера в Австрии, представляет собой уникальное пространство, разработанное Prana Studio. Заказчик стремился создать домашний и уютный интерьер, который днем функционирует как семейная пиццерия с возможностью проведения банкетов, а вечером легко трансформируется в динамичное место для кинопросмотров, вечеринок и праздников. У входа расположена небольшая булочная со свежей выпечкой, дополняющая общую атмосферу гостеприимства.
Основные идеи проекта
- Гибкая трансформация: Ключевой акцент на создании многофункционального пространства, способного легко менять свою атмосферу и назначение от дневного семейного кафе до вечернего развлекательного центра.
- Домашний уют и атмосфера праздника: Сочетание теплого, домашнего интерьера с возможностью быстрой адаптации для проведения ярких мероприятий.
- Дополнительная функциональность: Интеграция булочной у входа для расширения предложения и создания дополнительной точки притяжения.
Особенности реализации дизайна
- Зонирование и освещение: Продуманная планировка и многоуровневая система освещения позволяют мгновенно менять настроение пространства, обеспечивая как уютную дневную, так и динамичную вечернюю атмосферу.
- Материалы и декор: Использование натуральных материалов и гибких декоративных решений, которые поддерживают ощущение домашнего тепла и позволяют легко адаптировать интерьер под различные события.
- Технологии для досуга: Предусмотрена возможность интеграции оборудования для кинопоказов и звуковых систем для проведения вечеринок.
Результат:
TESLA AM SEE – это успешно реализованный проект, объединяющий уют семейной пиццерии и функциональность современного развлекательного пространства. Благодаря грамотному дизайну, ресторан легко адаптируется под любые нужды, предлагая гостям комфорт и праздничное настроение на берегу австрийского озера, а свежая выпечка из булочной у входа создает дополнительный шарм.














